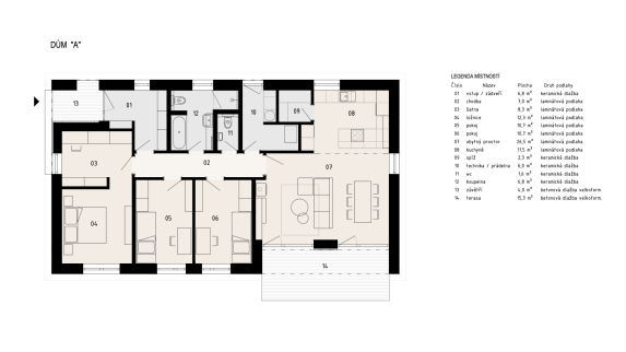
Rodinný dům 4 A

Označení

4 A

Dispozice

4+kk

Užitná plocha

127 m2

Stav

Prodaný

Orientace na

jihozápad

Plocha pozemku

780 m2

Cena

9 990 000 Kč

Kalkulačka Spočítat hypotéku
Poptat dům

Popis domu

Úspora a energetická nezávislost je významným znakem projektu. Náš projekt nabízí absolutní nezávislost na dodavatelích plynu a pitné vody. Domy jsou vytápěné tepelným čerpadlem s přípravou pro krbová kamna. Celý projekt disponuje vlastním zdrojem pitné vody.

Domy jsou z konstrukčního hlediska řešeny tradičním způsobem. Zděný obvodový plášť z pálených keramických bloků v tl. 30cm je posazen na betonových základových pasech a doplněn zateplením v mocnosti 18 cm. Nad otvory jsou osazeny keramické překlady a celek je ztužen monolitickými věnci. Dřevěný vazníkový sedlový krov vytváří nosnou konstrukci pro odvětrávaný střešní plášť s keramickou taškovou krytinou na straně exteriéru, pro tepelnou izolaci stropu minerální vatou a celistvý sádrokartonový podhled na straně interiéru.

Obálka objektů je z hlediska energetického posouzení navržena ve třídě "B - velmi úsporná", což spolu s vytápěním splitovým tepelným čerpadlem vzduch-voda a krbovými kamny jako doplňkovým zdrojem tepla zajistí dlouhodobý uživatelský komfort. Ten je ještě podpořen podlahovým vytápěním ve všech obytných místnostech a přípravou pro osazení venkovních hliníkových žaluzií nad okny zasklenými izolačním trojsklem. Povrchová úprava nosných stěn i vnitřních zděných příček je většinově řešena omítkami (štukovými v interiéru, jemnozrnnou v exteriéru), místy je vnější plášť ozvláštněn užitím laťového obkladu z odolného modřínového dřeva.

Příloha a soubory ke stažení

S kým spolupracujeme

Hinton

Hinton

zhotovitel

Senesi

Senesi

Koupelny

JAF

JAF

Dveře, podlahy, dřevěné obklady a terasy

Hanák

Hanák

Kuchyně

Více o partnerech

Hypoteční kalkulačka

Vypočtěte si, jakou měcíční splátku Vám dokážeme s naším financováním zařídit.

nahrávám kalkulačku...

Poptat dům